土地活用パートナー 長吉建設

06-6799-3238

貸事務所・倉庫・工場・店舗
のことなら長吉建設へ Facebook Instagram 06-6799-3238

menu

八尾市跡部本町N-STYLE跡部

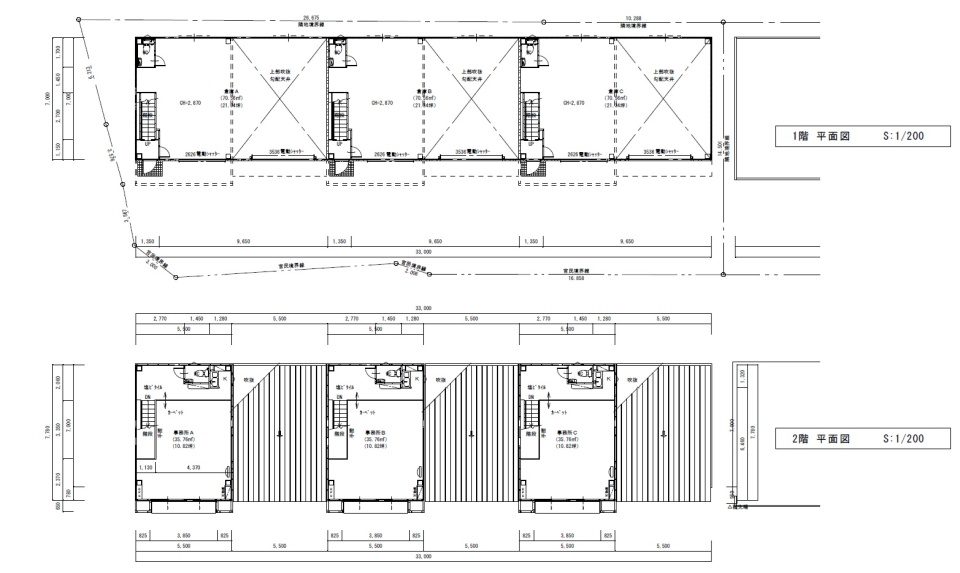
事務所付倉庫

賃料(税込)
286,000円
住所
大阪府八尾市跡部本町3丁目2-2
建物面積
1F/21.27坪  2F/10.84坪
保証金/解約引
6ヶ月/2ヶ月
管理費・共益費
その他経費
(仲介手数料)
賃料の1ヶ月分発生いたします。
駐車場
建物前面駐車場あり
交通
JR線 久宝寺駅 徒歩約9分

物件種目
事務所付倉庫
建物構造
鉄骨造
築年月
2023年7月
接道状況
南側道路幅員 4.7m 
用途地域
準工業地域
建物面積・使用部分面積
現況
空き
引渡時期
即日
取引形態
媒介
建物設備
1F/電動シャッター・洗面・トイレ・インターホン 2F/事務所内装・トイレ
契約期間
3年
備考

※賃料は税込表記です。 ※保証会社  加入要(初回保証料・・・賃料の1か月分、1年の更新料・・・賃料の10%) ※「交通」はグーグルマップの徒歩時間を参照しております。 ※募集内容に変更が生じる可能性がございます。 ご了承下さい。

表示されている地図は周辺環境を示すものであり、実際の物件所在地とは異なる場合がございます。詳細は必ず店舗までお問い合わせください。

この物件へのお問い合わせはこちら