土地活用パートナー 長吉建設

06-6799-3238

貸事務所・倉庫・工場・店舗
のことなら長吉建設へ Facebook Instagram 06-6799-3238

menu

平野区長吉六反2丁目巽CUBE SPACE E号

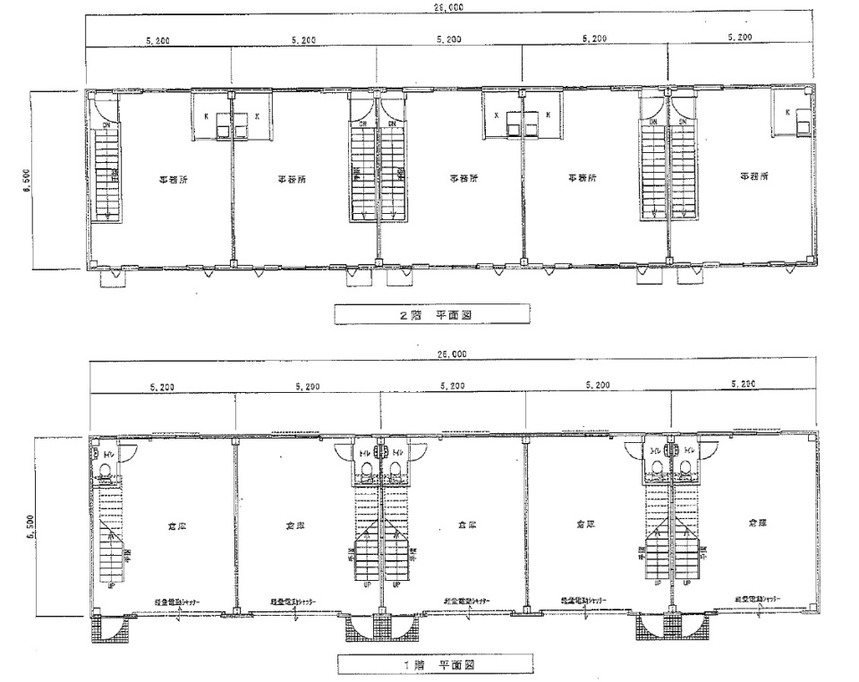
事務所付倉庫

賃料(税込)
162,800円
住所
大阪府平野区長吉六反2丁目3番62号
建物面積
1F/10.22坪 2F/10.22坪
保証金/解約引
保証金6か月/解約引/2か月
管理費・共益費
その他経費
(仲介手数料)
成約時、手数料として家賃の1カ月分+税が必要です
駐車場
有(建物南側)
交通
大阪メトロ線 谷町線 長原駅 徒歩11分

物件種目
事務所付倉庫
建物構造
鉄骨造
築年月
2025年8月
接道状況
南側道路幅員7.5m
用途地域
第1種住居地域
建物面積・使用部分面積
現況
空き
引渡時期
即日
取引形態
媒介
建物設備
1F・・・電動シャッター・洗面・トイレ・インターホン 2F・・・事務所内装
契約期間
3年
備考

※賃料は税込表記です。

※保証会社  加入要(初回保証料・・・賃料の1か月分、1年の更新料・・・賃料の10%) ※「交通」はグーグルマップの徒歩時間を参照しております。

※募集内容に変更が生じる可能性がございます。 ご了承下さい。


表示されている地図は周辺環境を示すものであり、実際の物件所在地とは異なる場合がございます。詳細は必ず店舗までお問い合わせください。

この物件へのお問い合わせはこちら