土地活用パートナー 長吉建設

06-6799-3238

貸事務所・倉庫・工場・店舗
のことなら長吉建設へ Facebook Instagram 06-6799-3238

menu

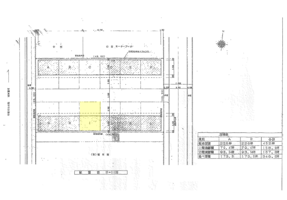
大阪市生野区巽中2丁目薮下コンパクトオフィス I号

事務所付倉庫

賃料(税込)
253,000円
住所
大阪府大阪市生野区巽中2丁目1-9
建物面積
1階/13.2坪  2階/15.5坪
保証金/解約引
保証金/6か月 解約引/2か月
管理費・共益費
3000円(ゴミ代)
その他経費
(仲介手数料)
賃料の1ヶ月分発生いたします。
駐車場
建物前面に駐車スペース有
交通
大阪メトロ 千日前線 北巽駅 徒歩約11分

物件種目
事務所付倉庫
建物構造
鉄骨造
築年月
1996年9月
接道状況
東側道路幅員6.5m  間口7.75m
用途地域
準工業地域
建物面積・使用部分面積
現況
使用中
引渡時期
2026年6月中旬頃
取引形態
媒介
建物設備
1F 電動シャッター インターホン
契約期間
3年
備考

※賃料は税込表記です。 ※保証会社  加入要(初回保証料・・・賃料の1か月分、1年の更新料・・・賃料の10%)

※「交通」はグーグルマップの徒歩時間を参照しております。

※募集内容に変更が生じる可能性がございます。 ご了承下さい。

表示されている地図は周辺環境を示すものであり、実際の物件所在地とは異なる場合がございます。詳細は必ず店舗までお問い合わせください。

この物件へのお問い合わせはこちら