土地活用パートナー 長吉建設

06-6799-3238

貸事務所・倉庫・工場・店舗
のことなら長吉建設へ Facebook Instagram 06-6799-3238

menu

堺市南区深坂南305(地番)新築物件山大倉庫付事務所

事務所付倉庫

※写真は施工例です。詳しくは資料をご覧ください。

敷地図面

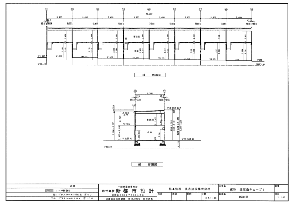
平面図

立面図

立面図

1階倉庫

1階倉庫

1階倉庫

1階倉庫

2階 事務所

2階 事務所

2階 事務所

トイレ

ミニキッチン

※写真は施工例です。詳しくは資料をご覧ください。

敷地図面

平面図

立面図

立面図

1階倉庫

1階倉庫

1階倉庫

1階倉庫

2階 事務所

2階 事務所

2階 事務所

トイレ

ミニキッチン

賃料(税込)
170,500円
住所
大阪府堺市南区深坂南305(地番)
建物面積
1F/10.1坪 2F/10.1坪
保証金/解約引
保証金/6か月 解約引/2ヶ月
管理費・共益費
無し
その他経費
(仲介手数料)
成約時、手数料として家賃の1カ月分+税が必要です
駐車場
同敷地内に専用駐車場有(2台)
交通
泉北高速鉄道 泉が丘駅 徒歩12分

物件種目
事務所付倉庫
建物構造
鉄骨造
築年月
2026年9月中旬頃完成予定
接道状況
西側道路幅員 8m
用途地域
第二種中高層住居専用地域
建物面積・使用部分面積
現況
建築中
引渡時期
2026年9月中旬頃
取引形態
媒介
建物設備
1F:電動シャッター、トイレ 2F:ミニキッチン
契約期間
3年
備考

※賃料は税込表記です。

※募集内容に変更が生じる可能性がございます。 ご了承下さい。

※引き渡し日に変更が生じる可能性がござます。

※保証会社  加入要(初回保証料・・・賃料の1か月分、1年の更新料・・・賃料の10%)

※「交通」はグーグルマップの徒歩時間を参照しております。

表示されている地図は周辺環境を示すものであり、実際の物件所在地とは異なる場合がございます。詳細は必ず店舗までお問い合わせください。

この物件へのお問い合わせはこちら