土地活用パートナー 長吉建設

06-6799-3238

貸事務所・倉庫・工場・店舗
のことなら長吉建設へ Facebook Instagram 06-6799-3238

menu

八尾市北木の本1丁目松井工場

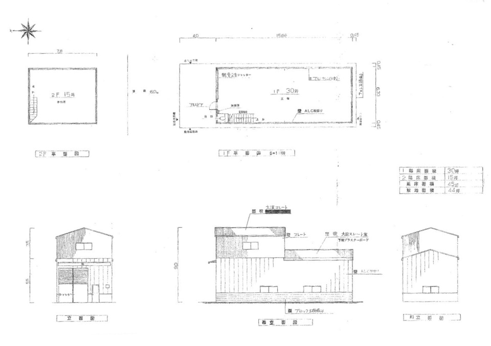
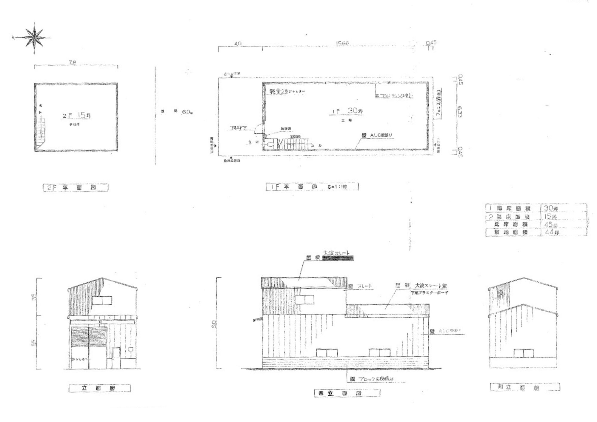
工場

賃料(税込)
180,000円
住所
大阪府八尾市北木の本1丁目25-7
建物面積
1F/29.98坪 2F/14.93坪
保証金/解約引
保証金/6か月 解約引/2ヶ月
管理費・共益費
無し
その他経費
(仲介手数料)
成約時、手数料として家賃の1カ月分+税が必要です
駐車場
建物前面に駐車スペース有
交通

物件種目
工場
建物構造
鉄骨造
築年月
1990年8月
接道状況
北側道路幅員6m
用途地域
準工業地域
建物面積・使用部分面積
現況
使用中
引渡時期
2026年6月上旬頃予定
取引形態
媒介
建物設備
契約期間
3年
備考

※賃料は税込表記です。

※募集内容に変更が生じる可能性がございます。 ご了承下さい。

※引き渡し日に変更が生じる可能性がござます。 ※保証会社  

加入要(初回保証料・・・賃料の1か月分、1年の更新料・・・賃料の10%) ※「交通」はグーグルマップの徒歩時間を参照しております。

表示されている地図は周辺環境を示すものであり、実際の物件所在地とは異なる場合がございます。詳細は必ず店舗までお問い合わせください。

この物件へのお問い合わせはこちら