土地活用パートナー 長吉建設

06-6799-3238

貸事務所・倉庫・工場・店舗
のことなら長吉建設へ Facebook Instagram 06-6799-3238

menu

大阪市平野区長吉川辺3丁目キミヒロリース倉庫

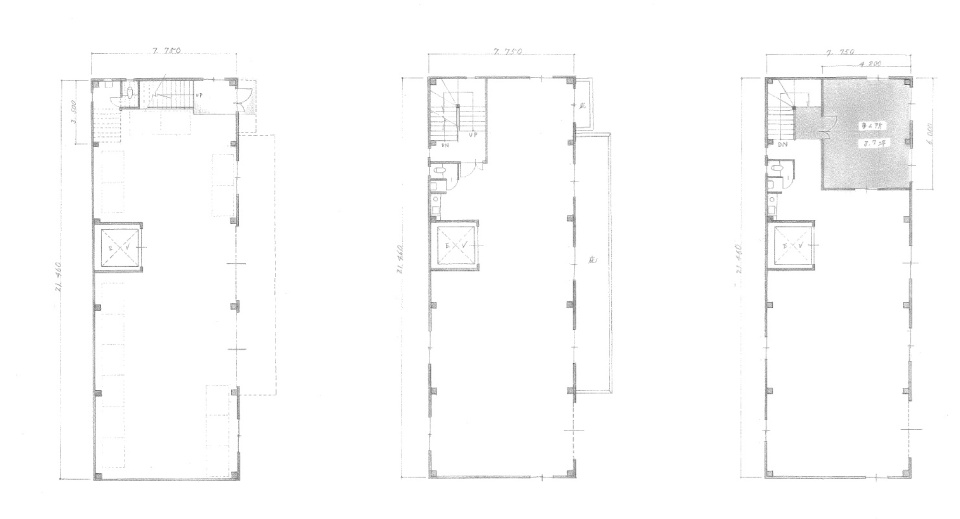
事務所付倉庫

賃料(税込)
825,000円
住所
大阪府大阪市平野区長吉川辺3丁目14-9
建物面積
1F/約50.31坪 2F/約50.31坪 3F/約50.31坪
保証金/解約引
6ヶ月/2ヶ月
管理費・共益費
その他経費
(仲介手数料)
賃料の1ヶ月分発生いたします。
駐車場
建物全面駐車場あり
交通
JR八尾駅 徒歩約6分

物件種目
事務所付倉庫
建物構造
鉄骨造
築年月
接道状況
北側幅員・・・8.4m  
用途地域
第一種住居地域
建物面積・使用部分面積
現況
使用
引渡時期
相談
取引形態
媒介
建物設備
契約期間
3年
備考

保証会社要加入です。

表示されている地図は周辺環境を示すものであり、実際の物件所在地とは異なる場合がございます。詳細は必ず店舗までお問い合わせください。

この物件へのお問い合わせはこちら