土地活用パートナー 長吉建設

06-6799-3238

貸事務所・倉庫・工場・店舗
のことなら長吉建設へ Facebook Instagram 06-6799-3238

menu

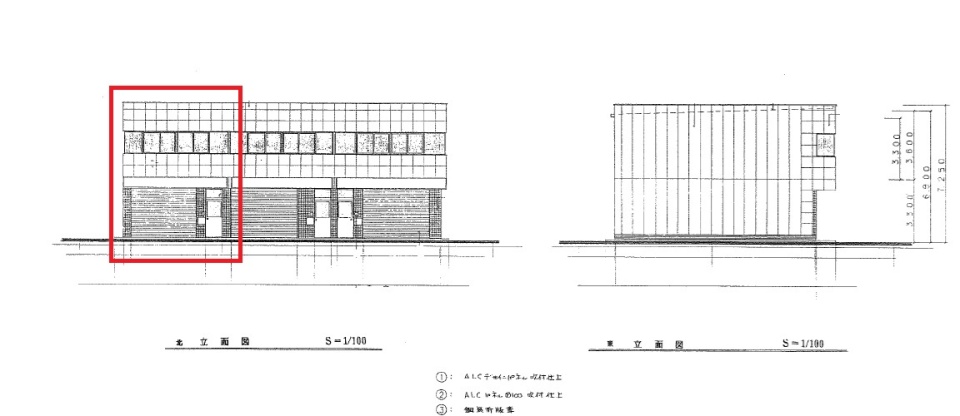
八尾市南太子堂6丁目原田コンパクトオフィス

事務所付倉庫

賃料(税込)
253,000円
住所
大阪府八尾市南太子堂6丁目2-66
建物面積
1F/18.3坪 2F/20坪 
保証金/解約引
保証金/6か月 解約引/2か月
管理費・共益費
その他経費
(仲介手数料)
成約時、手数料として家賃の1カ月分+税が必要です
駐車場
建物前面に駐車スペース有
交通
JR大和路線 久宝寺駅 徒歩14分

物件種目
事務所付倉庫
建物構造
鉄骨造
築年月
1998年10月
接道状況
西側道路幅員3.2m
用途地域
準工業地域
建物面積・使用部分面積
1階倉庫仕様 18.3坪 2階事務所仕様 20坪
現況
使用中
引渡時期
2026年2月上旬
取引形態
媒介
建物設備
1F:電動シャッター、トイレ、手洗い 2F:事務所内装、シンク
契約期間
3年
備考

※賃料は税込表記です。

※保証会社  加入要(初回保証料・・・賃料の1か月分、1年の更新料・・・賃料の10%) ※「交通」はグーグルマップの徒歩時間を参照しております。

※募集内容に変更が生じる可能性がございます。 ご了承下さい。

表示されている地図は周辺環境を示すものであり、実際の物件所在地とは異なる場合がございます。詳細は必ず店舗までお問い合わせください。

この物件へのお問い合わせはこちら