土地活用パートナー 長吉建設

06-6799-3238

貸事務所・倉庫・工場・店舗
のことなら長吉建設へ Facebook Instagram 06-6799-3238

menu

大阪市西成区潮路新築物件潮路COMPACT OFFICE 2

事務所付倉庫

見本写真

見本写真

見本写真

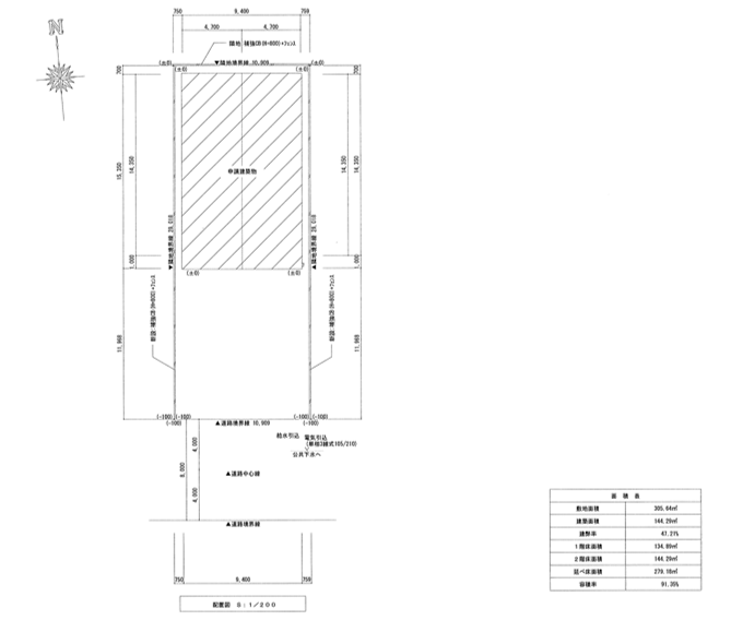
配置図

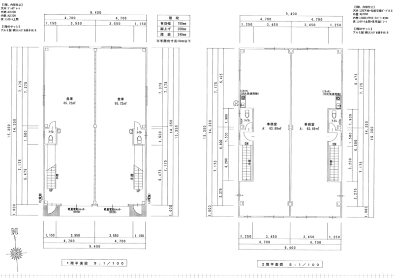
平面図

立面図

見本写真

見本写真

見本写真

配置図

平面図

立面図

賃料(税込)
492,800円
住所
大阪府大阪市西成区潮路1丁目4-7
建物面積
1階/20.4坪  2階/21.82坪
保証金/解約引
保証金/6か月 解約引/2か月
管理費・共益費
その他経費
(仲介手数料)
賃料の1ヶ月分発生いたします。
駐車場
有り(建物前面スペース)
交通
大阪メトロ 四つ橋線 【岸里駅】徒歩約5分 南海電鉄堺筋線【天下茶屋駅】徒歩約5分

物件種目
事務所付倉庫
建物構造
鉄骨造
築年月
2026年4月
接道状況
南側道路幅員8m 道路間口10.9m
用途地域
第一種住居地域
建物面積・使用部分面積
現況
建設中
引渡時期
2026年4月下旬頃
取引形態
媒介
建物設備
1F/照明、コンセント、電動シャッター、トイレ 2F/事務所内装、ミニキッチン、照明、トイレ
契約期間
3年
備考

※賃料は税込表記です。 ※募集内容に変更が生じる可能性がございます。 ご了承下さい。

※引き渡し日に変更が生じる可能性がござます。

※保証会社  加入要(初回保証料・・・賃料の1か月分、1年の更新料・・・賃料の10%)

※「交通」はグーグルマップの徒歩時間を参照しております。

表示されている地図は周辺環境を示すものであり、実際の物件所在地とは異なる場合がございます。詳細は必ず店舗までお問い合わせください。

この物件へのお問い合わせはこちら