土地活用パートナー 長吉建設

06-6799-3238

貸事務所・倉庫・工場・店舗
のことなら長吉建設へ Facebook Instagram 06-6799-3238

menu

松原市小川松本CUBE SPACE

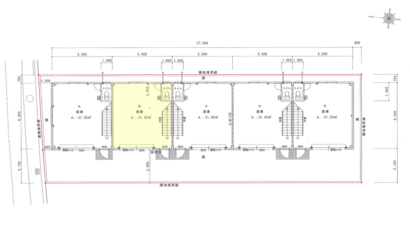
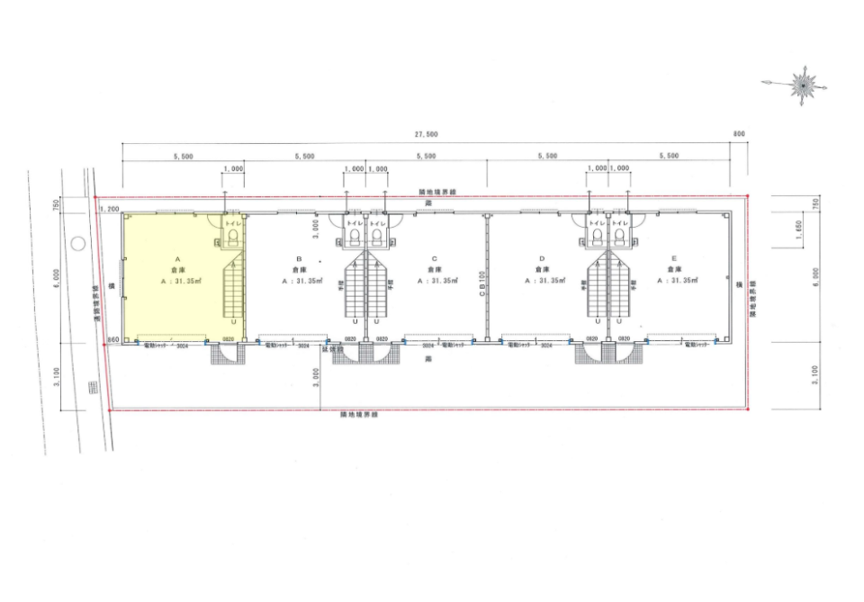
事務所付倉庫

賃料(税込)
143,000円
住所
大阪府松原市小川4丁目1-13
建物面積
1F/9.98坪  2F/9.98坪
保証金/解約引
6ヶ月/2ヶ月
管理費・共益費
その他経費
(仲介手数料)
賃料の1ヶ月分発生いたします。
駐車場
建物前面駐車場あり
交通
近鉄南大阪線 恵我ノ荘駅 徒歩約20分

物件種目
事務所付倉庫
建物構造
鉄骨造
築年月
2024年4月
接道状況
北側道路幅員 4.2m 
用途地域
準工業地域
建物面積・使用部分面積
現況
使用中
引渡時期
2025年11月上旬頃空き
取引形態
媒介
建物設備
1F/電動シャッター・洗面・トイレ・インターホン 2F/事務所内装
契約期間
3年
備考

※賃料は税込表記です。 ※保証会社  加入要(初回保証料・・・賃料の1か月分、1年の更新料・・・賃料の10%) ※「交通」はグーグルマップの徒歩時間を参照しております。 ※募集内容に変更が生じる可能性がございます。 ご了承下さい。

表示されている地図は周辺環境を示すものであり、実際の物件所在地とは異なる場合がございます。詳細は必ず店舗までお問い合わせください。

この物件へのお問い合わせはこちら