土地活用パートナー 長吉建設

06-6799-3238

貸事務所・倉庫・工場・店舗
のことなら長吉建設へ Facebook Instagram 06-6799-3238

menu

大阪市住吉区藤本コンパクトオフィス

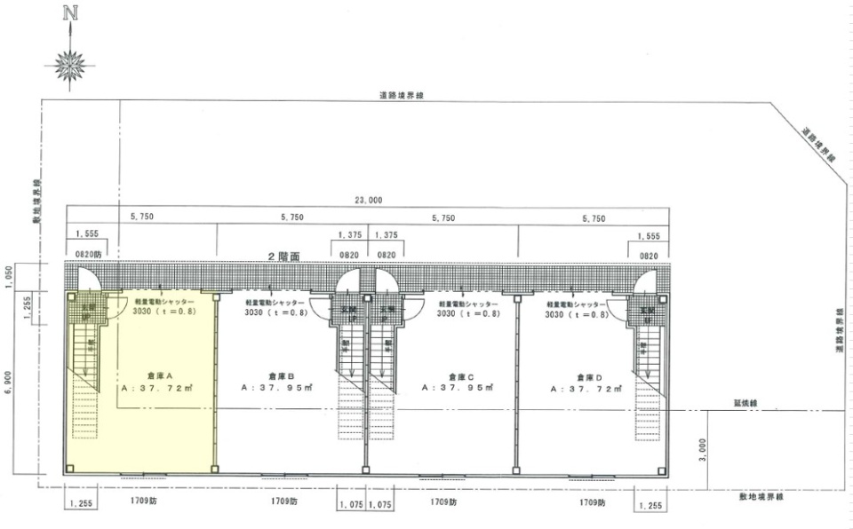
事務所付倉庫

賃料(税込)
231,000円
住所
大阪府大阪市住吉区長居東2丁目11-29
建物面積
1F/12坪 2F/14坪
保証金/解約引
保証金/6か月 解約引/2か月
管理費・共益費
無し
その他経費
(仲介手数料)
成約時、手数料として家賃の1カ月分+税が必要です
駐車場
建物前面に駐車スペース有
交通
大阪メトロ 御堂筋線 長居駅 徒歩11分

物件種目
事務所付倉庫
建物構造
鉄骨造
築年月
2016年3月
接道状況
北側道路幅員6m 東側道路幅員8m
用途地域
第二種中高層住居専用地域
建物面積・使用部分面積
現況
使用中
引渡時期
2026年4月上旬頃予定
取引形態
媒介
建物設備
契約期間
3年
備考

        

表示されている地図は周辺環境を示すものであり、実際の物件所在地とは異なる場合がございます。詳細は必ず店舗までお問い合わせください。

この物件へのお問い合わせはこちら