土地活用パートナー 長吉建設

06-6799-3238

貸事務所・倉庫・工場・店舗
のことなら長吉建設へ Facebook Instagram 06-6799-3238

menu

松原市村井N-style(D号)

事務所付倉庫

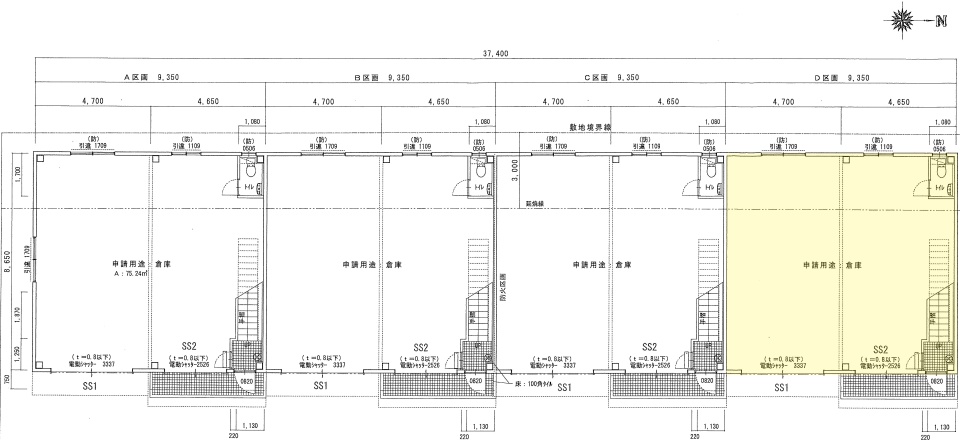
1階 平面

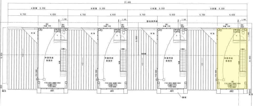
2階 平面

立面図

1階 平面

2階 平面

立面図

賃料(税込)
286,000円
住所
大阪府松原市天美我堂6丁目54番地
建物面積
1階/24.46坪 2階/13.22坪 
保証金/解約引
保証金7ヶ月/解約引2ヶ月
管理費・共益費
無し
その他経費
(仲介手数料)
成約時、手数料として家賃の1ヶ月分+税が必要です。
駐車場
有り(建物前面スペース)
交通
大阪メトロ 御堂筋線 北花田駅 徒歩13分

物件種目
事務所付倉庫
建物構造
鉄骨造亜鉛メッキ鋼板葺2階建
築年月
2018年4月
接道状況
東側道路幅員7m
用途地域
第2種中高層住居専用地域
建物面積・使用部分面積
現況
使用中
引渡時期
2026年1月上旬予定
取引形態
媒介
建物設備
1階・・・・・ 電動シャッター 洋式トイレ インターホン 2階・・・・・ 事務所内装 換気設備 洋式トイレ 手洗い                   ミニキッチン 温水器
契約期間
3年
備考

※賃料は税込表記です。

※保証会社・・・加入要(初回保証料として賃料の1か月分の費用が発生します)

※「交通」はグーグルマップの徒歩時間を参照しております。

※募集内容に変更が生じる可能性がございます。 ご了承下さい。

表示されている地図は周辺環境を示すものであり、実際の物件所在地とは異なる場合がございます。詳細は必ず店舗までお問い合わせください。

この物件へのお問い合わせはこちら