土地活用パートナー 長吉建設

06-6799-3238

貸事務所・倉庫・工場・店舗
のことなら長吉建設へ Facebook Instagram 06-6799-3238

menu

平野区太口コンパクトオフィス(E号)

事務所付倉庫

賃料(税込)
198,000円
住所
大阪府平野区長吉六反1丁目7-3
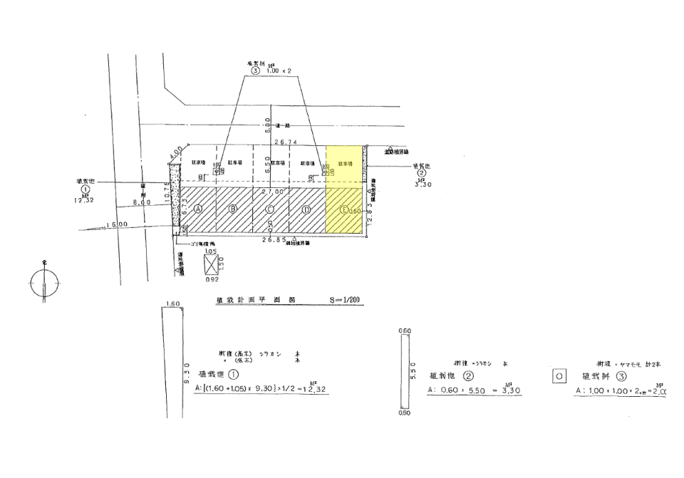
建物面積
1F/11坪 2F/12.26坪
保証金/解約引
保証金/6ヶ月 解約引/2ヶ月
管理費・共益費
その他経費
(仲介手数料)
成約時、手数料として家賃の1カ月分+税が必要です
駐車場
有り(建物前面スペース)
交通
大阪メトロ 谷町線 長原駅 徒歩約16分

物件種目
事務所付倉庫
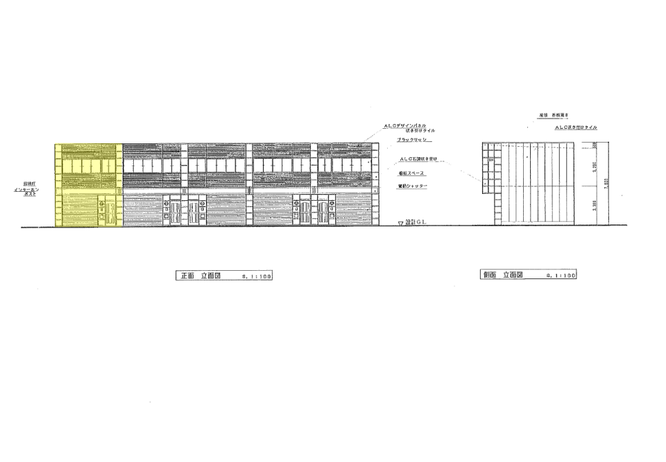
建物構造
鉄骨造
築年月
1998年5月
接道状況
北側道路幅員 約6m
用途地域
第二種住居地域
建物面積・使用部分面積
現況
使用中
引渡時期
2026年3月上旬頃
取引形態
媒介
建物設備
1F・・・電動シャッター インターホン  2F・・・事務所内装 ミニキッチン トイレ
契約期間
3年
備考

※賃料は税込表記です。

※工事の延長等の諸事情により引き渡し日に変更が生じる可能性がございます。ご了承下さい。

※「交通」はグーグルマップの徒歩時間を参照しております。

※募集内容に変更が生じる可能性がございます。ご了承下さい。

表示されている地図は周辺環境を示すものであり、実際の物件所在地とは異なる場合がございます。詳細は必ず店舗までお問い合わせください。

この物件へのお問い合わせはこちら