土地活用パートナー 長吉建設

06-6799-3238

貸事務所・倉庫・工場・店舗
のことなら長吉建設へ Facebook Instagram 06-6799-3238

menu

平野区風呂コンパクトオフィス

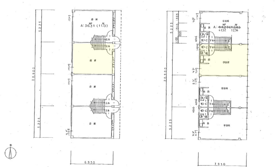
事務所付倉庫

外観

前面道路

前面道路

前面道路

1階倉庫

1階倉庫

1階倉庫

2階事務所

2階事務所

2階事務所

2階事務所

洗面所

階段

1階パノラマ

2階パノラマ

外観

前面道路

前面道路

前面道路

1階倉庫

1階倉庫

1階倉庫

2階事務所

2階事務所

2階事務所

2階事務所

洗面所

階段

1階パノラマ

2階パノラマ

賃料(税込)
194,700円
住所
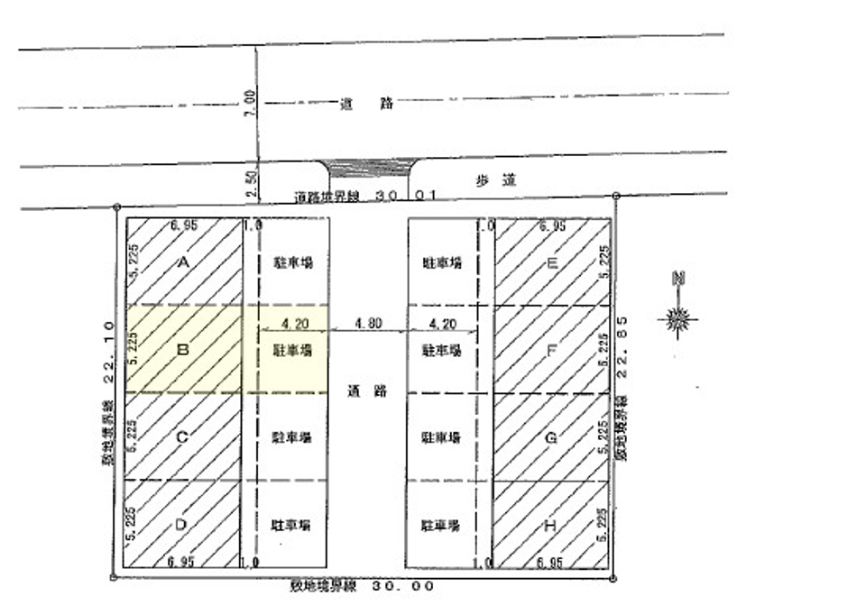
大阪府平野区長吉長原西2丁目7-5
建物面積
1F/11坪 2F/12.56坪
保証金/解約引
保証金6ヶ月/解約引2ヶ月
管理費・共益費
3000円(ゴミ)
その他経費
(仲介手数料)
成約時、手数料として家賃の1ヶ月分+税が必要です。
駐車場
有り(建物前面スペース)
交通
大阪メトロ 谷町線 出戸駅 徒歩7分

1F:11坪 2F:12・56坪 倉庫付き事務所
大阪メトロ谷町線 長原駅から徒歩13分☆

物件種目
事務所付倉庫
建物構造
鉄骨造
築年月
平成8年6月
接道状況
北側12m
用途地域
第二種中高層住居専用地域
建物面積・使用部分面積
1F:11坪 2F:12・56坪
現況
使用中
引渡時期
2026年6月上旬頃
取引形態
媒介
建物設備
1F:電動シャッター 倉庫(スケルトン) 2F:事務所内装 ミニキッチン トイレ
契約期間
3年 
備考


※賃料は税込表記です。

※工事の延長等の諸事情により引き渡し日に変更が生じる可能性がございます。  ご了承下さい。

※「交通」はグーグルマップの徒歩時間を参照しております。

※募集内容に変更が生じる可能性がございます。  ご了承下さい。



表示されている地図は周辺環境を示すものであり、実際の物件所在地とは異なる場合がございます。詳細は必ず店舗までお問い合わせください。

この物件へのお問い合わせはこちら